Pronájem bytu 3+1/L (75m2) v Hradci Králové - Malšovice
BYTY - PRONÁJEM 940-400080
Hradec Králové18 000 Kč/měsíc
+ energie dle textu
DOMLUVTE SI PROHLÍDKU
Popis nemovitosti
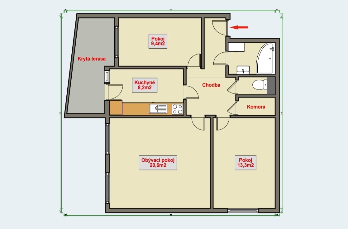
Nabízíme k pronájmu byt 3+1 s velkou lodžií/terasou v Hradci Králové - Malšovicích, ul. Čajkovského.
Byt se nachází ve 4./5. patře zděného bytového domu bez výtahu. Je po částečné rekonstrukci - nové laminátové podlahy, nová koupelna s WC, plastová okna ad. Byt je bez nábytku, vybaven pouze kuchyňskou linkou s kombinovaným sporákem, internetové připojení.
Parkování zdarma před domem, veškerá občanská vybavenost v nejbližším okolí.
Základní měsíční nájemné 18.000,- Kč + zálohy na energie a služby cca 3.250,- Kč/měs. (2 osoby) + přepis elektřiny a plynu (pouze vaření) na nájemce, vratná kauce ve výši 22.000,- Kč, provize RK 18.000,- Kč.
Majitel si vyhrazuje právo výběru nájemce dle jeho zvolených kritérií. Byt je k dispozici od 1.11.2025.
Celkem plocha bytu 75m2 (67m2 byt + 8m2 lodžie).
PENB zatím nepředán, uvádíme tř. G.
PENB: G
Podrobné informace
Č.zakázky: | 940-400080 |
Lokalita: | Nový Hradec Králové |
Město: | Hradec Králové |
Typ objektu: | Byty |
Druh: | 3+1 |
Počet podlaží: | 5 |
Podlaží: | 4 |
Terasa: | ano |















