Prodej RD 5+1 Medlov u Zborovic

DOMY - PRODEJ 97267

Zborovice

3 050 000 Kč

-

DOMLUVTE SI PROHLÍDKU
Prodej RD 5+1 Medlov u Zborovic - titulní obrázek--

Popis nemovitosti

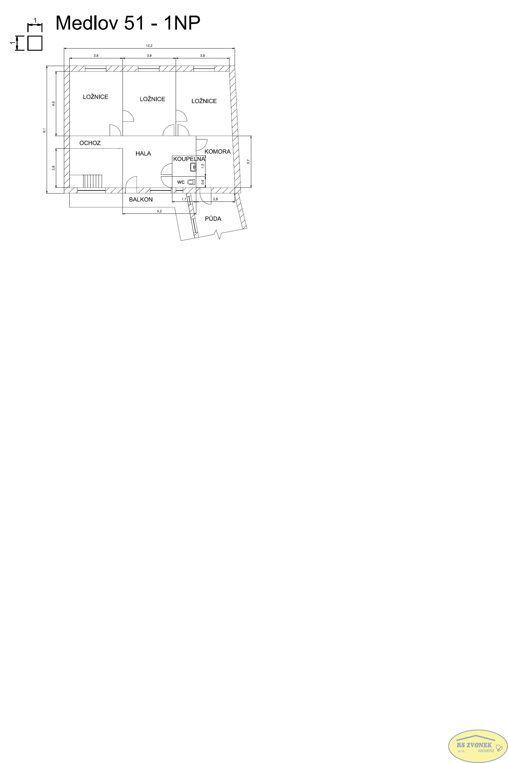
Hledáte dům na vesnici v klidné lokalitě obklopené přírodou, nedaleko lesů a přitom s dostupností cca 15 min. do centra města? Jeden takový tu máme, jedná se o řadový RD s dispozicí 5+1 v obci Medlov, okres Kroměříž. Dům prošel částečnou rekonstrukcí cca před 15ti lety v přízemní části (elektřina, odpady, podlahy, kuchyňská linka) o podlahové ploše 81m2, kde se nachází - vstupní chodba, komora, kuchyně s obývacím prostorem, hala se vstupem na dvůr, pokoj a koupelna se sprochovým koutem i vanou. První patro o podlahové ploše 92m2 je v původním stavu z cca 80-tých let a prošlo pouze udržovacími úpravami, zde se nachází chodba, balkón, 3 pokoje, komora se vstupem na půdu, koupelna se sprchovým koutem a samostatné WC. K domu náleží i garáž, kotelna, prádelna a sklad. Je napojen na elektřinu, plyn, vodovod i kanalizaci. Ohřev vody zajišťuje elektrický bojler, vytápění převážně elektrickými přímotopy či plynovými wafkami. Dům je z větší části zděný - cihly plné pálené v kombinaci s nepálenými, které jsou převážně v přízemní části, někdejsou použity i švárobetonové tvárnice, střecha sedlová - původní stav. Doporučujeme prohlídku. K dispozici ihned. PENB - G .

PENB: G

Podrobné informace

Č.zakázky: 97267
Lokalita: Medlov u Zborovic
Město: Zborovice
Typ objektu: Domy a vily
Druh: rodinné
Vnitřní dispozice: 4+1
Garáž: ano
Plyn: obecní plynovod
Odpad: veřejná kanalizace
Elektřina: 220/380
Voda: obecní vodovod
Prodej RD 5+1 Medlov u Zborovic - obrázek č.1 Prodej RD 5+1 Medlov u Zborovic - obrázek č.2 Prodej RD 5+1 Medlov u Zborovic - obrázek č.3 Prodej RD 5+1 Medlov u Zborovic - obrázek č.4 Prodej RD 5+1 Medlov u Zborovic - obrázek č.5 Prodej RD 5+1 Medlov u Zborovic - obrázek č.6 Prodej RD 5+1 Medlov u Zborovic - obrázek č.7 Prodej RD 5+1 Medlov u Zborovic - obrázek č.8 Prodej RD 5+1 Medlov u Zborovic - obrázek č.9 Prodej RD 5+1 Medlov u Zborovic - obrázek č.10 Prodej RD 5+1 Medlov u Zborovic - obrázek č.11 Prodej RD 5+1 Medlov u Zborovic - obrázek č.12 Prodej RD 5+1 Medlov u Zborovic - obrázek č.13 Prodej RD 5+1 Medlov u Zborovic - obrázek č.14 Prodej RD 5+1 Medlov u Zborovic - obrázek č.14 Prodej RD 5+1 Medlov u Zborovic - obrázek č.14
Líbí se vám tato nabídka? Domluvte si prohlídku Prodej RD 5+1 Medlov u Zborovic - titulní obrázek

ZAVOLEJTE MI:

Veronika Došlíková

Veronika Došlíková
realitní makléř

603 273 462

NEBO NAPIŠTE:

Vaše data jsou v bezpečí. Přečtěte si naše zásady ochrany osobních údajů