Novostavba patrového RD 5+kk, Kroměříž

DOMY - PRODEJ 97269/01

Kroměříž

7 690 000 Kč

-

DOMLUVTE SI PROHLÍDKU
Novostavba patrového RD 5+kk, Kroměříž - titulní obrázek--

Popis nemovitosti

Hledáte komfortní rodinné bydlení v Kroměříží? Preferujete klidnou lokalitu, avšak blízko kompletní občanské vybavenosti? Seznamte se s naší nabídkou nového projektu v Kroměříži!

Tento projekt spojuje komfort, kvalitní provedení a příjemné prostředí s výbornou dostupností do centra města. Můžete si vybrat mezi rodinnými domy na klíč ve dvou variantách (levá a pravá).

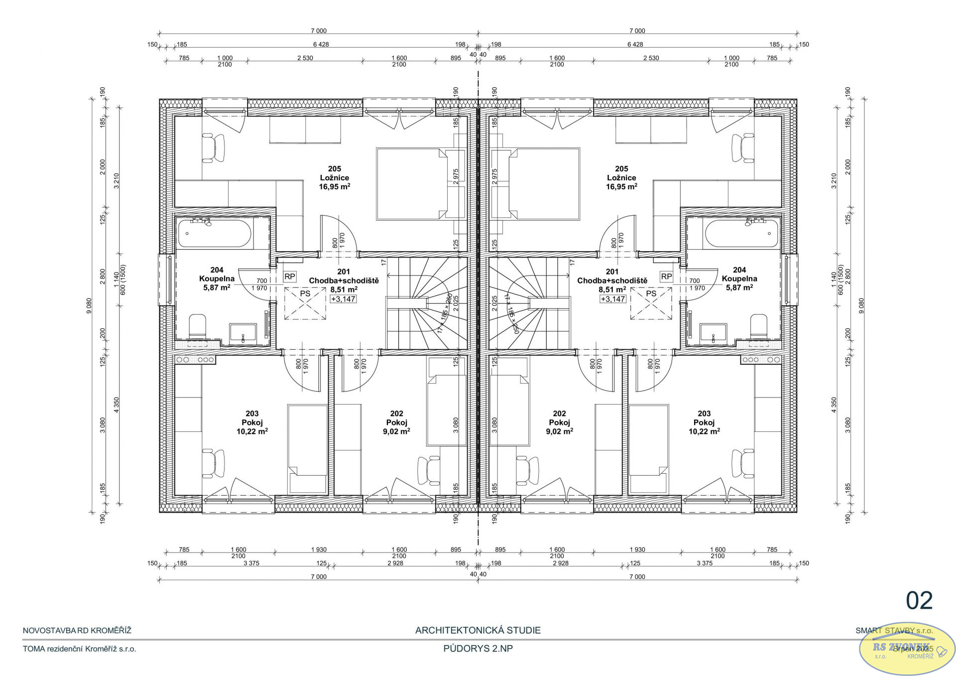
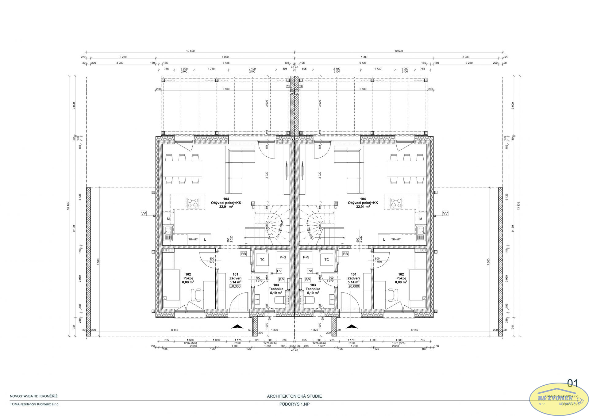
V této nabídce Vám představujeme moderní patrový dům s promyšlenou dispozicí 5+kk a užitnou plochou 102 m2, který nabízí dostatek prostoru pro pohodlný rodinný život. Energeticky úsporný dům bude vybaven tepelným čerpadlem, okny s trojskly, klimatizací a řízeným větráním s rekuperací. Podrobný standard vybavení Vám rádi zašleme na vyžádání.

Dům v přízemí disponuje praktickým zádveřím s prostorem pro vestavěné skříně, technickou místností s WC, obývacím prostorem spojeným s kuchyní a jídelním koutem a praktickou pracovnou. V patře pak najdeme velkorysou ložnici s úložnými prostory, dva dětské pokoje a koupelnu s vanou a WC. Součástí jsou i veškeré exteriérové prvky, včetně oplocení, zpevněných ploch i parkovacího stání.

Vše je realizováno na klíč, tedy kompletní realizace projektu, včetně všech kroků nezbytných k předání funkčního domu připraveného k nastěhování. Klienti mají navíc možnost přizpůsobit některé prvky stavby svým individuálním požadavkům. Předpoklad dokončení realizace prvních dvojdomků je rok 2026-2027.

Pokud Vás tato nabídka oslovila, neváhejte mě kontaktovat. Rád Vám poskytnu podrobné informace, představím aktuálně dostupné možnosti a pomohu Vám vybrat ideální řešení pro Vaše nové bydlení.

PENB: A

Podrobné informace

Č.zakázky: 97269/01
Lokalita: Kroměříž
Město: Kroměříž
Typ objektu: Domy a vily
Druh: rodinné
Vnitřní dispozice: 5+kk
Parkovací stání: ano
Nízkoenergetický: ano
Odpad: veřejná kanalizace
Elektřina: 220/380
Voda: obecní vodovod
Novostavba patrového RD 5+kk, Kroměříž - obrázek č.1 Novostavba patrového RD 5+kk, Kroměříž - obrázek č.2 Novostavba patrového RD 5+kk, Kroměříž - obrázek č.3 Novostavba patrového RD 5+kk, Kroměříž - obrázek č.4 Novostavba patrového RD 5+kk, Kroměříž - obrázek č.5 Novostavba patrového RD 5+kk, Kroměříž - obrázek č.6 Novostavba patrového RD 5+kk, Kroměříž - obrázek č.7 Novostavba patrového RD 5+kk, Kroměříž - obrázek č.7
Líbí se vám tato nabídka? Domluvte si prohlídku Novostavba patrového RD 5+kk, Kroměříž - titulní obrázek

ZAVOLEJTE MI:

Pavel Výrostek ml.

Pavel Výrostek ml.
realitní makléř

603 273 470

NEBO NAPIŠTE:

Vaše data jsou v bezpečí. Přečtěte si naše zásady ochrany osobních údajů